

Wohnen mit Geschichte
129.999,00 €
Kaufpreis
Details
NUTZUNGSART: Wohnen
VERMARKTUNGSART: Kauf
OBJEKTART: Haus
OBJEKTTYP: Einfamilienhaus
PLZ: 02736
ORT: Oppach
LAND: Deutschland
KAUFPREIS: 129.998,00 €
GRUNDSTÜCKSGRÖßE: 3.570 m²
AUSSEN-PROVISION: zahlt der Eigentümer für Sie
WÄHRUNG: €
ENERGIEAUSWEIS: Bedarfsausweis
Objektbeschreibung
Willkommen in Ihrem zukünftigen Zuhause – einem ehemaligen Bauernhaus mit Baujahr vor 1900, das durch seinen besonderen Charakter, großzügige Raumaufteilung und vielfältige Nutzungsmöglichkeiten überzeugt. Hier treffen ländlicher Charme, solide Substanz und Raum für Ihre individuellen Wohnideen aufeinander.
Ausstattung im Überblick
Ehemaliges Bauernhaus, Baujahr vor 1900
Großzügige Wohn- und Nebenflächen
Ölzentralheizung
Kamin im Wohnzimmer
Holzinnentüren, teils mit Glaselementen
Elektrisches Garagentor
Großzügiges Grundstück mit Brunnen
Carport und mehrere Stellflächen
Teilweise unverbaute Umgebungslage
Nutzflächen im Überblick
Garage: ca. 18 m²
Heizraum: ca. 14 m²
Fläche über der Garage: ca. 33 m²
Holz-/Nebengelass: ca. 16 m²
Weinkeller / Vorratsraum: ca. 7 m²
➡ Gesamtnutzfläche: ca. 90 m²
Modernisierungen im Überblick
Dach 2000
Fenster und Außentüren 1998
Heizungsanlage 1994
Modernisierung Bäder 1994
Fazit
Ihr liebhaberwürdiges Bauernhaus mitten in Oppach wird aufgrund der großzügigen Grundstücksgröße, der vielseitigen Wohn- und Nutzflächen sowie seines besonderen Charmes sehr gefragt sein. Ein Zuhause für alle, die Raum, Geschichte und Entwicklungspotenzial zu schätzen wissen.
Ausstattung
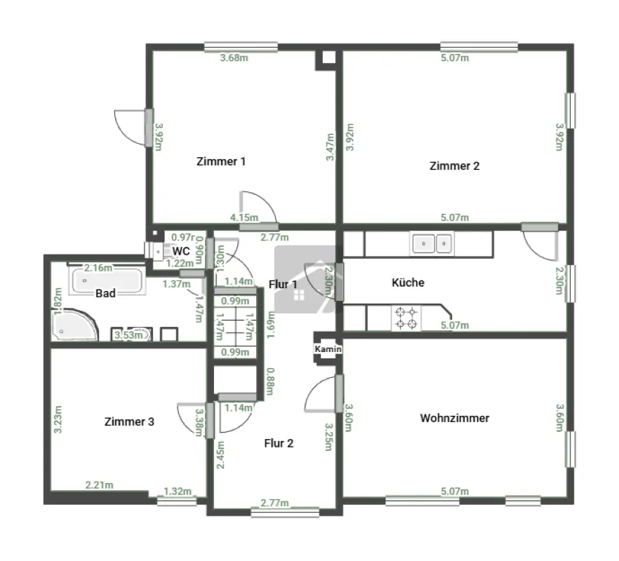
Wohnbereich – Erdgeschoss
Schon beim Betreten Ihres neuen Zuhauses empfängt Sie ein großzügiger Flur, von dem aus sich alle Räume angenehm erschließen. Zur rechten Seite liegt eine ehemalige, noch zu modernisierende Wohnstube, die fließend in die angrenzende Küche übergeht. Dahinter befindet sich ein weiterer Raum, den Sie ganz nach Ihren Bedürfnissen als Schlaf-, Gäste- oder Arbeitszimmer nutzen können. Alle Räume sind beheizt und von der Küche aus gelangen Sie bequem zurück in den Hausflur.
Im hinteren Bereich des Erdgeschosses erwartet Sie das Waschhaus mit bodengleicher Dusche, Waschmaschinenanschluss sowie einem zusätzlichen Ofen, der an kühleren Tagen für wohlige Wärme sorgt. Ein separates WC ist ebenfalls vorhanden. Von hier aus erreichen Sie das Nebengelass, das bislang als Holz- und Geräteraum genutzt wurde und Ihnen weiteres Ausbaupotenzial bietet.
Ein zusätzlicher Vorrats- bzw. Weinkeller ergänzt das Raumangebot. Bevor Sie die Treppe ins Obergeschoss hinaufgehen, erreichen Sie links einen weiteren beheizten Zwischenraum, der auf Ihre Ideen wartet. Angrenzend befinden sich der Heizungsraum mit Ölheizung sowie die Garage mit elektrischem Rolltor. Besonders praktisch: Sie gelangen von hier aus wettergeschützt direkt in den Wohnbereich. Über der Garage steht Ihnen zusätzliche Nutzfläche zur Verfügung.
Die Sanierung/Modernisierung des Erdgeschosses wurde im Kaufpreis bereits für Sie berücksichtigt.
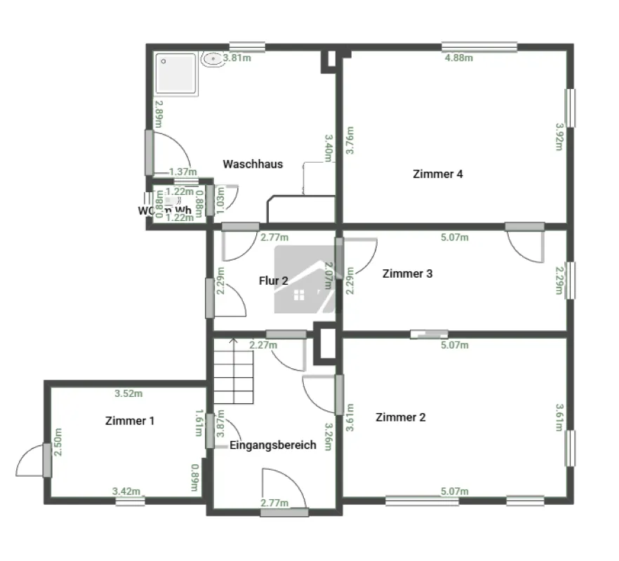
Obergeschoss – Wohnen mit Ausblick
Über eine gepflegte Holztreppe gelangen Sie in Ihr Obergeschoss. Auf der linken Seite befindet sich das Badezimmer, das sich in einem zeitgemäßen Zustand präsentiert und mit Dusche, Badewanne, Waschtisch, Heizung sowie modernisiertem Dachflächenfenster ausgestattet ist.
Geradeaus betreten Sie einen Raum, der sich ideal als Kinder- oder Arbeitszimmer eignet. Der Blick in die teils unverbaute Umgebung sorgt für eine angenehme Wohnatmosphäre, zudem besteht hier die Möglichkeit, einen Balkonaustritt zu realisieren.
Vom Flur aus erreichen Sie außerdem eine weitere Küche, die ausreichend Platz für den Familienalltag bietet. Dahinter liegt ein großzügiger Raum, der sich hervorragend als Esszimmer oder Arbeitsbereich anbietet. Weiter entlang des Flures erwartet Sie das gemütliche Wohnzimmer mit eingebautem Kamin – ein echter Wohlfühlort für entspannte Stunden. Ein weiterer Raum am Ende des Flures bietet Ihnen zusätzliche Gestaltungsmöglichkeiten.
Der Dachboden ist trocken, als Kaltdach ausgeführt und mit Unterspannbahn versehen. Eine spätere Dämmung zur Schaffung weiteren Wohnraums ist gut vorstellbar. Zudem steht Ihnen hier ein vorbereiteter Raum mit ca. 7 m² zur Verfügung, der derzeit nicht zur Wohnfläche zählt.
Außenbereich – Ihre persönliche Wohlfühloase
Die asphaltierte Zufahrt zu Ihrem Grundstück erfolgt direkt von einer öffentlichen Straße mit Winterdienst. Vor dem Haus stehen gepflasterte Stellflächen für Ihre Fahrzeuge und Besucher bereit.
Ihr weitläufiges Traum-Grundstück bietet Ihnen viel Raum zur Entfaltung: Ein Wäscheplatz, eine vorhandene Schaukel sowie eine Sitzgelegenheit an einem kleinen Teich laden Sie zum Verweilen ein. Ein intakter Brunnen ergänzt den Außenbereich. Zusätzlich stehen Ihnen rund um das Haus weitere Stellflächen sowie ein großzügiges Carport zur Verfügung.
Hinter dem Haus eröffnet sich eine weitere große Fläche, auf der Sie Ihre individuellen Wohnträume verwirklichen können – ob gemütliche Grillecke, Ruhezone oder eigener Gemüsegarten.
Lage
Oppach liegt im Herzen der Oberlausitz und überzeugt durch eine ruhige, gewachsene Wohnstruktur mit gleichzeitig guter Anbindung an die umliegenden Städte. Die Straße der Freundschaft befindet sich in einem überwiegend wohnwirtschaftlich geprägten Bereich, der sich durch eine angenehme Nachbarschaft und ein familienfreundliches Umfeld auszeichnet.
Der Ortskern von Oppach ist in wenigen Minuten erreichbar und bietet eine solide Infrastruktur mit Einkaufsmöglichkeiten für den täglichen Bedarf, medizinischer Versorgung, Apotheken sowie gastronomischen Angeboten. Kindertagesstätten, eine Grundschule und weitere Bildungseinrichtungen befinden sich in der näheren Umgebung und sind bequem erreichbar.
Die Verkehrsanbindung ist gut: Über die Bundesstraße B96 bestehen schnelle Verbindungen in Richtung Zittau, Löbau und Bautzen.
Die reizvolle Landschaft der Oberlausitz lädt zu vielfältigen Freizeitaktivitäten ein. Wander- und Radwege, Naherholungsgebiete sowie Sport- und Vereinsangebote sorgen für eine hohe Lebensqualität. Die Nähe zum Zittauer Gebirge bietet zusätzliche Möglichkeiten für Natur- und Freizeitliebhaber.
Insgesamt verbindet diese Lage ruhiges Wohnen mit einer guten Erreichbarkeit urbaner Zentren und eignet sich ideal für Familien, Paare oder Menschen, die naturnah wohnen und dennoch auf eine funktionierende Infrastruktur nicht verzichten möchten.
Weitere Informationen
Bei den Bildern handelt es sich um eine kleine Vorauswahl, es sind nicht alle Räume abgebildet.
Gern können Sie im Vorfeld den 3D-Rundgang durch das Haus und die Grundrisse erhalten, damit Sie in aller Ruhe prüfen können, ob dieses Zuhause Ihr Zuhause werden kann.
Da wir einen Exklusivvertrag haben, ist eine Kontaktaufnahme mit dem Verkäufer nicht gewünscht, die gesamte Abwicklung läuft über die Zuschke-Immobilienvermittlung GmbH.
Alle Angaben sind ohne Gewähr und basieren ausschließlich auf Informationen, die uns von unserem Auftraggeber zur Verfügung gestellt wurden. Wir übernehmen keine Gewähr für die Vollständigkeit, Richtigkeit und Aktualität dieser Angaben.
Alle Angaben und Preise sowie Reservierungen sind unverbindlich und gelten immer nur vorbehaltlich der Zustimmung des Eigentümers.
Kontaktieren Sie uns gern jetzt für Ihren persönlichen Besichtigungstermin!
Dieses Liebhaber – Haus wird sehr gefragt sein.
Von vorherigen Aufsuchen der Immobilie bitten auf ausdrücklichen Wunsch der Eigentümer abzusehen !!!
Sie wollen Ihre Immobilie auch verkaufen, dann melden Sie sich bei uns unter Zuschke Immobilienvermittlung GmbH. www. zuschke-immo.com oder Tel.: 03591 5979390








































