

Ihr gepflegtes Siedlungshaus mit großem Grundstück, Pool, Sauna und Weitblick
240.000,00 €
Kaufpreis
Wohnfläche
ca. 127 m²
Verfügbar ab
nach Absprache
Details
NUTZUNGSART: Wohnen
VERMARKTUNGSART: Kauf
OBJEKTART: Haus
OBJEKTTYP: Einfamilienhaus
PLZ: 02694
ORT: Großdubrau / Dahlowitz
LAND: Deutschland
KAUFPREIS: 240.000,00 €
GRUNDSTÜCKSGRÖßE: 600 m²
AUSSEN-PROVISION: 3,57%
WÄHRUNG: €
ENERGIEAUSWEIS: Bedarfsausweis!
Objektbeschreibung
Hier wartet Ihr Zuhause mit viel Raum, Privatsphäre und Lebensqualität auf Sie als neue Eigentümer.
In ruhiger Siedlungslage unweit des Bautzener Stausees präsentiert sich Ihr großzügige Einfamilienhaus mit weitläufigem, eingefriedetem Grundstück, mehreren Terrassen- und Balkonbereichen, Sauna sowie einem Pool auf der Grundstücksgrenze.
Ihr Anwesen überzeugt durch seine naturnahe Umgebung, geschützte Gartenbereiche mit viel Grün sowie einen schönen Ausblick über Felder und Wälder in Richtung Bautzen. Ein besonderes Detail ist der derzeit gemeinschaftlich genutzte Pool an der Grundstücksgrenze – hier können die zukünftigen Eigentümer individuell entscheiden, ob die bestehende Nutzung mit den Nachbarn fortgeführt oder eine eigene Lösung umgesetzt werden darf.
Ausstattung im Überblick
großzügiges, eingefriedetes Grundstück mit viel Grün
mehrere Balkonbereiche
Terrasse mit Außenkamin
Pool auf Grundstücksgrenze (gemeinschaftliche Nutzung möglich)
Weitblick über Felder und Wälder Richtung Bautzen
Einbaukamin im Wohnbereich
Galerieebene im Obergeschoss
modernisiertes Hauptbad mit Dusche, Wanne, Bidet, WC
Gäste-WC im Erdgeschoss
ausgebautes Dachgeschoss mit 2 zusätzlichen Räumen
Sauna mit Dusche im Keller
voll unterkellert
Kelleraußentreppe in den Garten
Keller-Garage mit direktem Hauszugang
zusätzliche Werkstatt im Keller
Stellplatz vor dem Haus
eigener Gartenbrunnen zur Bewässerung
Modernisierungen im Überblick
Bäder modernisiert: 2002
Solaranlage: 2004
Dach: erneuert (Bestand)
Fenster und Außentüren: 1993
Heizungsanlage (Öl/Buderus): 1994/95
Hinweis: Elektrik und Heizsystem entsprechen überwiegend dem Bau-/Modernisierungszeitraum und wurden im Kaufpreis berücksichtigt. Eine technische Überprüfung bzw. Modernisierung kann individuell erfolgen.
Ausstattung
Bereits vor Ihrer Eingangstür empfängt Sie ein Balkon mit Sitzmöglichkeit und schönem, unverbaubarem Blick über die umliegenden Felder und Wälder in Richtung Bautzen – ein idealer Platz für ruhige Morgen- oder Abendstunden.
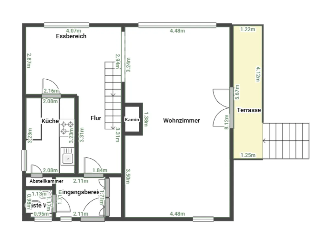
Beim Betreten Ihres zukünftigen Zuhauses gelangen Sie in den Eingangsbereich mit Gäste-WC (modernisiert 2002) sowie der zentralen Elektroverteilung. Von hier öffnet sich der Zugang in Ihren großzügigen Wohn- und Essbereich. Linkerhand befindet sich der Essplatz mit angrenzender Küche, welche zusätzlich über eine praktische Abstellkammer verfügt. Bei Bedarf ließe sich dieser Bereich auch offen zum Wohnbereich übergehend gestalten.
Ihr Wohnbereich selbst beeindruckt durch seine Offenheit und Helligkeit. Ein hochwertiger, fest eingebauter Kamin sorgt hier für wohlige Wärme und gemütliche Atmosphäre. Von hier aus gelangen Sie auf den Balkon, von dem eine massive Außentreppe Sie direkt hinunter auf die große Gartenterrasse mit Außenkamin führt – ideal für Familienfeiern und gesellige Sommerabende.
Eine besondere architektonische Note erhält der Wohnraum durch die offene Galerie im Obergeschoss, die derzeit als Arbeitsbereich genutzt wurde und Ihnen einen schönen Blick in den Wohnraum bietet.
Über die Treppe erreichen Sie Ihr Obergeschoss mit zwei gut geschnittenen Zimmern, nutzbar als Schlaf-, Kinder- oder Arbeitsräume. Das für Sie bereits modernisierte Hauptbad (2002) bietet eine fast ebenerdige Dusche, Badewanne, Bidet und WC und befindet sich in zeitgemäßem Zustand. Ebenfalls auf dieser Ebene liegt die Galerie mit Zugang zu einem weiteren großzügigen Balkon.
Von hier führt Sie eine Tür in das ausgebaute Dachgeschoss mit zwei zusätzlichen Räumen. Diese wurden bisher als Schlaf- bzw. Gästezimmer genutzt. Bei Bedarf kann hier durch Sie eine Beheizung ergänzt werden. Ein besonderes Highlight ist das große Galeriefenster mit teilweisem Blick Richtung Bautzen und in den Garten.
Ihr zukünftiges Zuhause ist vollständig unterkellert und bietet außergewöhnlich viel Nutzfläche. Direkt vom Flur aus gelangen Sie in die integrierte Keller-Garage mit angrenzender Werkstatt – besonders praktisch bei schlechtem Wetter oder für Heimwerker. Auf der gegenüberliegenden Seite befindet sich das große Wasch- und Hauswirtschaftshaus mit Heizungsanlage (Ölheizungssystem Systron mit Buderus-Heizkessel, Baujahr 1995) sowie Zugang über eine Kelleraußentreppe in den Garten.
Ebenfalls im Keller befinden sich die Öltanks, weitere Lagerräume sowie als besonderes Wellness-Highlight eine Sauna mit vorgelagerter Dusche. Ein zusätzlicher Zugang führt in ein historisches, ehemaliges Kellergewölbe, das früher als Stallung genutzt wurde.
Das Grundstück selbst ist rundum begehbar, gut eingefriedet und durch dichte Bepflanzung teilweise blickgeschützt. Mehrere Terrassen- und Aufenthaltsbereiche ermöglichen Sonne und Schatten zu jeder Tageszeit. Ein eigener Brunnen erleichtert die Gartenbewässerung in den Sommermonaten.
Lage
Ihre Immobilie befindet sich in ruhiger Siedlungslage im Ortsteil Dahlowitz, einem gefragten Wohnstandort im unmittelbaren Umfeld von Bautzen. Die Umgebung ist geprägt von Einfamilienhäusern, Gärten und naturnaher Landschaft.
Besonders attraktiv ist die Nähe zum Bautzener Stausee, der nur wenige Minuten entfernt liegt und vielfältige Freizeit- und Erholungsmöglichkeiten wie Baden, Radfahren, Wassersport und Spaziergänge bietet. Die weite Landschaft mit Feldern, Wäldern und sanften Hügeln schafft ein hohes Maß an Wohn- und Lebensqualität.
Die Bautzener Innenstadt mit Einkaufsmöglichkeiten, Schulen, medizinischer Versorgung und kulturellen Angeboten ist in kurzer Fahrzeit erreichbar. Ebenso bestehen gute Anbindungen in Richtung Dresden sowie zur Autobahn A4.
Die Lage verbindet damit ruhiges, naturnahes Wohnen mit der Nähe zu städtischer Infrastruktur – ideal für Familien, Ruhesuchende und Pendler gleichermaßen.
Weitere Informationen
Bei den Bildern handelt es sich um eine kleine Vorauswahl, es sind nicht alle Räume abgebildet.
Da wir einen Exklusivvertrag haben, ist eine Kontaktaufnahme mit dem Verkäufer nicht gewünscht, die gesamte Abwicklung läuft über die Zuschke-Immobilienvermittlung GmbH.
Das Gesamt Honorar beträgt 7,14 %, davon zahlt Hälftig der Käufer 3,57 %. Zuschke-Immobilienvermittlung GmbH erhält vom oben genannten Auftraggeber ein Verkaufshonorar in Höhe von 3,57 %. inkl. der jeweils gültigen gesetzlichen Mehrwertsteuer vom Kaufpreis.
Alle Angaben sind ohne Gewähr und basieren ausschließlich auf Informationen, die uns von unserem Auftraggeber zur Verfügung gestellt wurden. Wir übernehmen keine Gewähr für die Vollständigkeit, Richtigkeit und Aktualität dieser Angaben.
Alle Angaben und Preise sowie Reservierungen sind unverbindlich und gelten immer nur vorbehaltlich der Zustimmung des Eigentümers.
Kontaktieren Sie uns gern jetzt für das Komplett-Exposé einen 360°Rundgang und Ihren persönlichen Besichtigungstermin!
Dieses Liebhaber-Haus wird sehr gefragt sein.
Sie wollen Ihre Immobilie auch verkaufen, dann melden Sie sich bei uns unter Zuschke Immobilienvermittlung GmbH. www. zuschke-immo.com oder Tel.: 03591 5979390


































