

Eigentumswohnung in zentraler Lage mit Blick über die Dächer von Bautzen
79.000,00 €
Kaufpreis
Mieteinnahmen (Soll):
390,00 €/Monat
Hausgeld:
144,00 €/Monat
Details
NUTZUNGSART: Anlage
VERMARKTUNGSART: Kauf
OBJEKTART: Wohnung
OBJEKTTYP: Etagenwohnung
PLZ: 02625
ORT: Bautzen
LAND: Deutschland
KAUFPREIS: 79.000,00 €
GRUNDSTÜCKSGRÖßE: 60 m²
AUSSEN-PROVISION: 7,14%
WÄHRUNG: €
ENERGIEAUSWEIS: Bedarfsausweis
Objektbeschreibung
Ihre attraktive Eigentumswohnung liegt mitten im Herzen von Bautzen und bietet Ihnen einen einzigartigen Blick über die Dächer der historischen Stadt. Trotz der zentralen Lage genießen Sie hier Ruhe und eine wunderbare Aussicht auf den Reichenturm, den Petridom sowie weitere markante Türme der Umgebung.
Die Wohnung wurde bereits für Sie komplett neu geweißt und steht sowohl Ihnen als Käufer als auch Ihren zukünftigen Mietern bezugsfertig zur Verfügung.
Weitere Highlights der Wohnung und des Hauses:
Kellerabteil, Fahrradabstellraum und Wäscheplatz
Einbauküche ist im Kaufpreis enthalten
Fahrradraum separat über einen Straßeneingang erreichbar
Parkmöglichkeiten über den Anwohnerparkausweis in den umliegenden gekennzeichneten Flächen oder nahegelegenen Parkhäusern
Das Gebäude selbst stammt aus dem Jahr 1993 und überzeugt durch einen modernen Baustil sowie einen hohen Modernisierungsstandard. Dank der gepflegten Rücklagen wurden in den letzten Jahren unter anderem Heizung, Heizkessel, Fenster, Dach, Fassade sowie der Hausflur erneuert und gewartet.
Insgesamt bietet diese Wohnung eine Kombination aus zentraler Lage, hochwertiger Ausstattung – ideal für Eigennutzer oder als Kapitalanlage für zukünftige Mieter.
Derzeitig ist die Wohnung leer gezogen und deswegen auch verkauft wird. Gern begleiten wir Sie auch auf der Suche nach einem neuen Mieter, falls Sie die Wohnung nicht selbst nutzen möchten.
Ausstattung
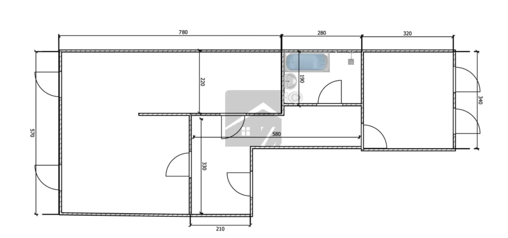
Beim Betreten Ihrer Wohnung gelangen Sie über den großzügigen, rechtwinklig geschnittenen Flur direkt in das helle Wohnzimmer mit offener Wohnküche. Der Wohnbereich ist für Sie mit hochwertigem Echtholzparkett ausgestattet, das regelmäßig gepflegt und aufgearbeitet wurde. Im Flur und Schlafzimmer wurde ein neuwertiges Laminat verlegt, das die Räume modern und einladend wirken lässt.
Die offene Küche ist das Highlight Ihrer Wohnung und schafft einen großzügigen, lichtdurchfluteten Raum. Von hier aus genießen Sie den unvergleichlichen Ausblick über die Dächer der Stadt – ein Ort, an dem man sich sofort wohlfühlt.
Das Schlafzimmer ist nach hinten ausgerichtet und garantiert Ihnen zusätzlichen Rückzugsraum. Auch hier profitieren Sie oder Ihre zukünftige Mieter von einer hohen Wohnqualität und Ruhe trotz der zentralen Lage.
Ihr Badezimmer wurde modern neu gestaltet und verfügt über ein Designer-Waschbecken, raumhoch geflieste Wände sowie eine nahezu ebenerdige Dusche mit Glaselementen – ein echter Wohlfühlbereich für Sie.
Lage
Ihre Eigentumswohnung befindet sich in zentraler, historisch geprägter Lage von Bautzen – einer Stadt, die mit ihrer über tausendjährigen Geschichte, ihrem charmanten Altstadtkern und ihrer ausgezeichneten Infrastruktur überzeugt. Sie liegt nur wenige Gehminuten vom Marktplatz und der Altstadt entfernt, wo sich zahlreiche Einkaufsmöglichkeiten, Cafés, Restaurants und kulturelle Einrichtungen befinden.
Kindergärten, Grund- und weiterführende Schulen sind in kurzer Distanz erreichbar. So befindet sich der nächstgelegene Kindergarten nur rund 700 m, die Grundschule etwa 900 m und das Gymnasium ca. 1,5 km entfernt. Auch die medizinische Versorgung ist durch Arztpraxen, Apotheken und das nahegelegene Krankenhaus hervorragend gesichert.
Die Anbindung an den öffentlichen Nahverkehr ist optimal – eine Bushaltestelle liegt in der direkten Umgebung, der Bahnhof Bautzen ist in etwa 5 Autominuten erreichbar. Über die Bundesstraße 6 sowie die A4 besteht zudem eine sehr gute Verbindung in Richtung Dresden (ca. 50 km) und Görlitz (ca. 45 km).
Insgesamt bietet die Lage eine ideale Kombination aus städtischer Nähe, historischer Atmosphäre und guter Infrastruktur – perfekt für Eigennutzer wie auch Kapitalanleger, die Wert auf eine zentrale und nachgefragte Wohnlage legen.
Weitere Informationen
Bilder, Grundriss und Exposé geprüft?
Dann rufen Sie uns jetzt an, um Ihren Besichtigungstermin zu vereinbaren.
Fragen Sie uns gern unverbindlich für das Komplett-Exposé einen 360°Rundgang und Ihren persönlichen Besichtigungstermin!
Nach notarieller Beurkundung ist das Honorar verdient und fällig.
Das Gesamt Honorar beträgt 7,14%, inkl. der jeweils gültigen gesetzlichen Mehrwertsteuer vom Kaufpreis.
Da wir einen Exklusivvertrag haben, ist eine Kontaktaufnahme mit dem Verkäufer nicht gewünscht, die gesamte Abwicklung läuft über die Zuschke-Immobilienvermittlung GmbH.
Alle Angaben sind ohne Gewähr und basieren ausschließlich auf Informationen, die uns von unserem Auftraggeber zur Verfügung gestellt wurden. Wir übernehmen keine Gewähr für die Vollständigkeit, Richtigkeit und Aktualität dieser Angaben.
Alle Angaben und Preise sowie Reservierungen sind unverbindlich und gelten immer nur vorbehaltlich der Zustimmung des Eigentümers.
Kontaktieren Sie uns gern jetzt für Ihren persönlichen Besichtigungstermin!
Diese Eigentumswohnung wird sehr gefragt sein.
Sie wollen Ihre Immobilie auch verkaufen, dann melden Sie sich bei uns unter Zuschke Immobilienvermittlung GmbH. www. zuschke-immo.com oder Tel.: 03591 5979390
IMMO NR: 992
GALERIE

























